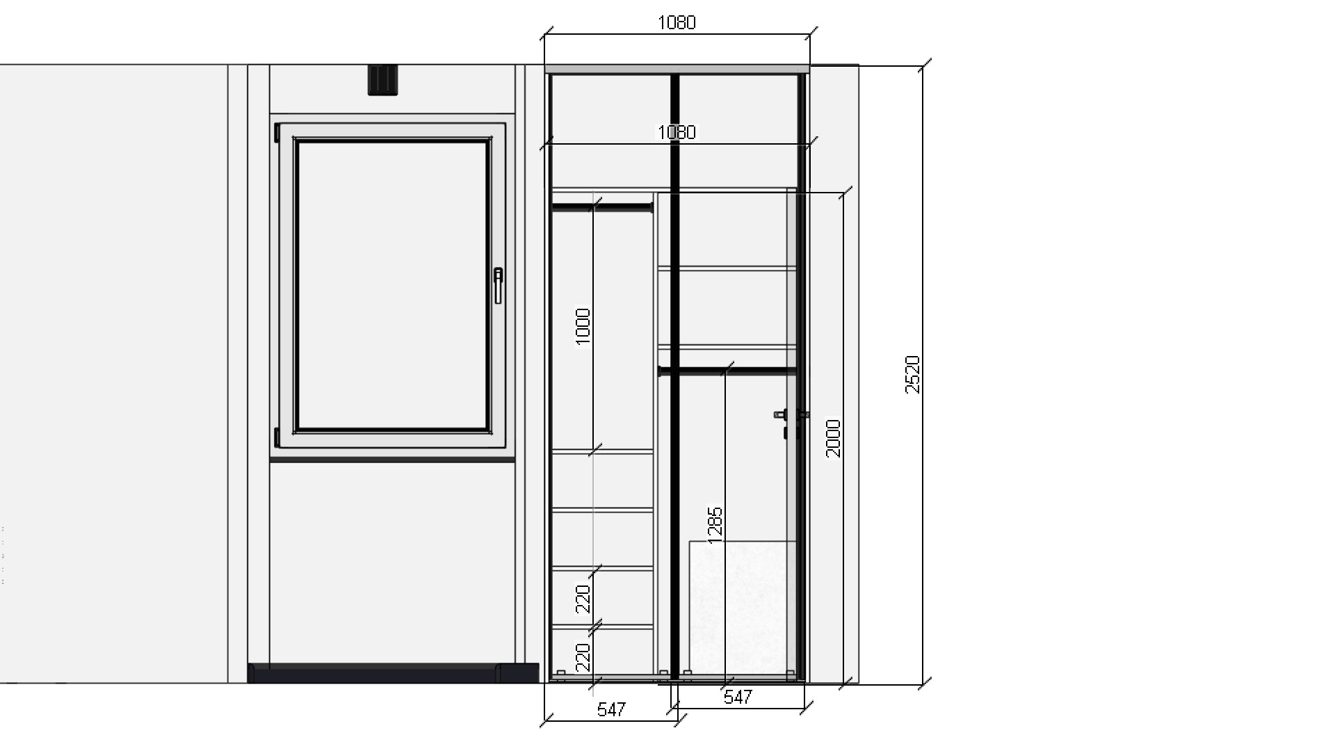
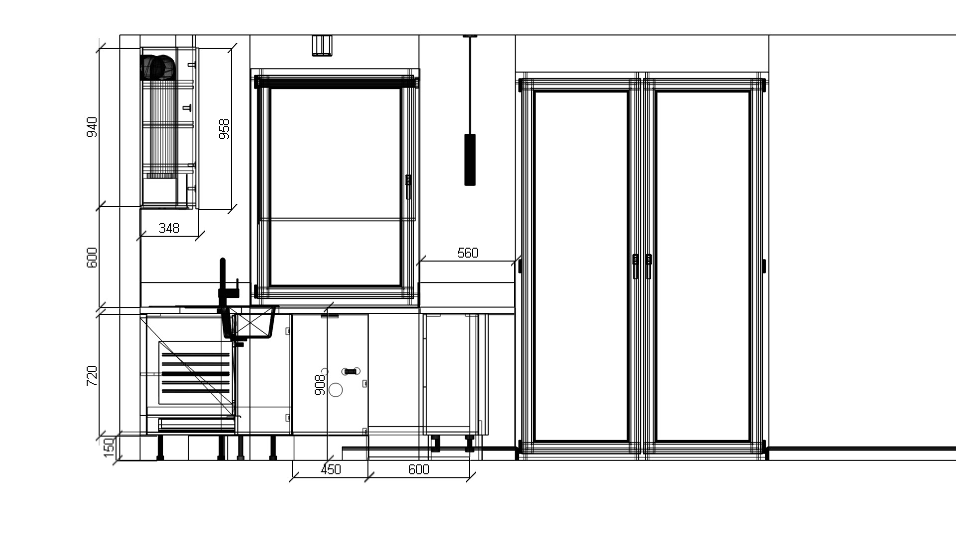
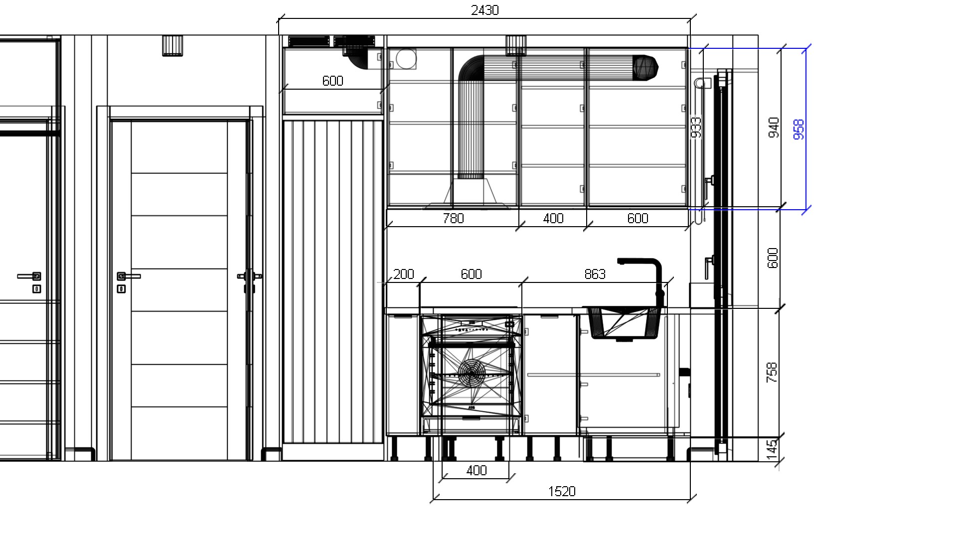
Projekt, który łączy funkcjonalność i estetykę (meble kuchenne i szafa)

Dobrze przygotowany projekt stanowi podstawę zarówno do wykonania mebli na wymiar, jak i do kompleksowego zagospodarowania wnętrz w ramach Home Staging. Przemyślany układ pozwala maksymalnie wykorzystać przestrzeń, zachowując jednocześnie spójność wizualną.

W projekcie wykorzystano kontrastowe zestawienie czerni, bieli i drewna, które tworzy elegancką i nowoczesną kompozycję. Ciepło drewnianych blatów i podłogi harmonizuje z minimalistycznymi, czarnymi frontami oraz jasnymi elementami zabudowy, nadając wnętrzu ponadczasowy charakter.

Zostaw Komentarz

Twój adres e-mail nie zostanie opublikowany. Wymagane pola są oznaczone *

Przewijanie do góry